★生活・教育徒歩圏内
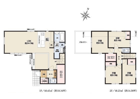
★対面キッチンでリビングの一体感のある開放的な空間
★趣味の広がる土間収納
★収納たっぷりウォークインクローゼット
| 種 別 | 新築一戸建 |
|---|---|
| 所 在 | 佐倉市臼井台 |
| 価 格 | 3,488万円 |
| 地 積 | 192.03m²(58.09 坪) |
| 延 床 | 108.88m²(32.94坪) |
| 間 取 | 4 LDK |
| 交 通 | 京成本線「京成臼井」駅徒歩14分 |
▲トップへ
▲トップへ
▲トップへ
| 所在 | 千葉県佐倉市臼井台 | 価格 | 3,488万円 |
|---|---|---|---|
| 交通 | 京成本線「京成臼井」駅徒歩14分 | ||
| 土地面積 | 192.03m²(58.09 坪) | 地目 | 宅地 |
| 土地権利 | 所有権 | 道路 | 西側幅員約4.5m公道 |
| 建物面積 | 108.88m²(32.94坪) | 間取り | 4LDK |
| 構造 | ⽊造・在来工法 | 築年月 | 2025年6月 |
| 駐車場 | 有 | 設備 | 都市ガス・公営水道・本下水 |
| 都市計画 | 区域内・市街化区域 | 用途地域 | 第一種低層住居専用地域 |
| 建ぺい率 | 50% | 容積率 | 100% |
| 備考 | 建物表示登記費用:102,000円(税込) 網戸、カーテンレール、TVアンテナはオプションとなります。 電波障害等によるケーブルテレビ共聴アンテナの申込みは買主様負担となります 司法書士・土地家屋調査士は売主指定となります | ||
| 特徴 | 新築 | ||
| 現況 | 新築 | 引渡条件 | 現況有姿 |
| 引渡日 | 即可 | 取引態様 | 仲介 |
| 更新日 | 2025年10月12日(登録日2025年10月05日) | 次回更新日 | |
▲トップへ