★角地!
★敷地ゆったり75坪
★カースペース4台分
★内装リフォーム後引き渡し
| 種 別 | 中古一戸建 |
|---|---|
| 所 在 | 東金市粟生飛地 |
| 価 格 | 1,680万円 |
| 地 積 | 247.94m²(75.00 坪) |
| 延 床 | 99.36m²(30.06坪) |
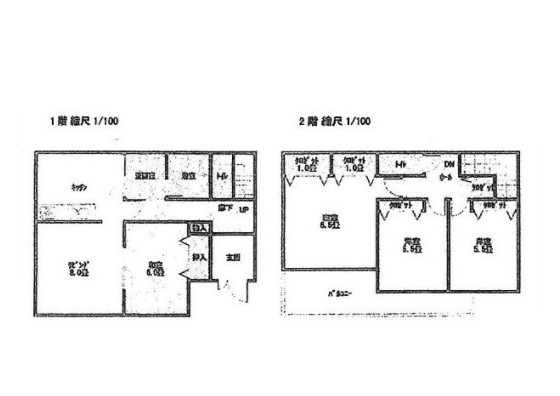
| 間 取 | 4 LDK |
| 交 通 | JR東金線「東金」駅4.0km |
▲トップへ
▲トップへ
| 所在 | 千葉県東金市粟生飛地 | 価格 | 1,680万円 |
|---|---|---|---|
| 交通 | JR東金線「東金」駅4.0km | ||
| 土地面積 | 247.94m²(75.00 坪) | 地目 | 宅地 |
| 土地権利 | 所有権 | 道路 | 北東側幅員5.9m公道 北西側幅員4.7m公道 |
| 建物面積 | 99.36m²(30.06坪) | 間取り | 4LDK |
| 構造 | ⽊造2階建 | 築年月 | 2013年1月 |
| 駐車場 | 有(4台分)※車種による | 設備 | オール電化・公営水道・浄化槽 |
| 都市計画 | 区域内・未線引区域 | 用途地域 | 無指定 |
| 建ぺい率 | 60% | 容積率 | 200% |
| 現況 | 空家 | 引渡条件 | 現況有姿 |
| 引渡日 | 相談 | 取引態様 | 仲介 |
| 更新日 | (登録日2025年11月23日) | 次回更新日 | |
▲トップへ