★閑静な住宅街
★「京成臼井」駅徒歩14分
★ドラッグストアや飲食店も徒歩圏内
| 種 別 | 中古一戸建 |
|---|---|
| 所 在 | 佐倉市王子台4丁目 |
| 価 格 | 2,680万円 |
| 地 積 | 115.71m²(35.00 坪) |
| 延 床 | 133.30m²(40.32坪) |
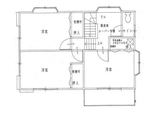
| 間 取 | 4 LDK |
| 交 通 | 京成本線「京成臼井」駅徒歩14分 京成本線「京成臼井」駅バス5分停歩1分 |
▲トップへ
| 所在 | 千葉県佐倉市王子台4丁目 | 価格 | 2,680万円 |
|---|---|---|---|
| 交通 | 京成本線「京成臼井」駅徒歩14分 京成本線「京成臼井」駅バス5分停歩1分 | ||
| 土地面積 | 115.71m²(35.00 坪) | 地目 | 宅地 |
| 土地権利 | 所有権 | 道路 | 北東側公道に間口12m接面 |
| 建物面積 | 133.30m²(40.32坪) | 間取り | 4LDK |
| 構造 | 木造3階建 | 築年月 | 2000年6月 |
| 駐車場 | 有 | 設備 | 電気・都市ガス・上水道・下水道 |
| 都市計画 | 区域内・市街化区域 | 用途地域 | 第一種住居地域 |
| 建ぺい率 | 60% | 容積率 | 200% |
| 現況 | 空家 | 引渡条件 | 現況有姿 |
| 引渡日 | 即時 | 取引態様 | 仲介 |
| 更新日 | (登録日2025年12月13日) | 次回更新日 | |
▲トップへ