土地・工場・事務所・倉庫・資材置き場・病院・店舗・ホテルなどの売買・賃貸物件を取り扱っています!

問い合わせリストに追加

建物付き物件詳細

写真・配置図・間取り図など物件の詳細を紹介しています。ご関心をお持ちになりましたら、百聞は一見にしかずです。お電話またはお問い合わせフォームからご連絡をいただき、ぜひ一度ご見学ください。

成田市東町一棟

物件No.25605

★民泊運営可能エリア
★成田空港からすぐ
★成田山の近く
★京成本線「京成成田」駅徒歩14分
★実質利回り6.66%

  • Map&Data
  • Map&Data
種 別売その他
所 在成田市東町234-9
価 格9,000万円
地 積433.03m²(130.99 坪)
延 床501.69m²(151.76坪)

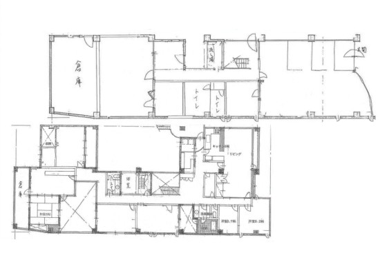
間取図

トップへ

物件No.25605【千葉県成田市東町234-9 9000万円】-間取図

物件データ

トップへ

所在千葉県成田市東町234-9価格9,000万円
交通
土地面積433.03m²(130.99 坪)地目宅地
土地権利所有権道路
建物面積501.69m²(151.76坪)間取り10SLDK
構造RC造2階建築年月1987年7月
駐車場設備
都市計画区域内・市街化区域用途地域
建ぺい率容積率
備考用途地域:調査中 / 建ぺい率:調査中 / 容積率:調査中
管理形態:自主管理
満室家賃:月額500,000円
現況空室引渡条件現況有姿
引渡日相談取引態様仲介
更新日(登録日2026年01月16日)次回更新日

アクセスマップ

トップへ