写真・配置図・間取り図など物件の詳細を紹介しています。ご関心をお持ちになりましたら、百聞は一見にしかずです。お電話またはお問い合わせフォームからご連絡をいただき、ぜひ一度ご見学ください。
★駅徒歩8分
★水道道路沿いの店舗事務所
| 種 別 | 貸店舗・事務所 |
|---|---|
| 所 在 | 王子台1-13-8 |
| 賃 料 | 187,000円 |
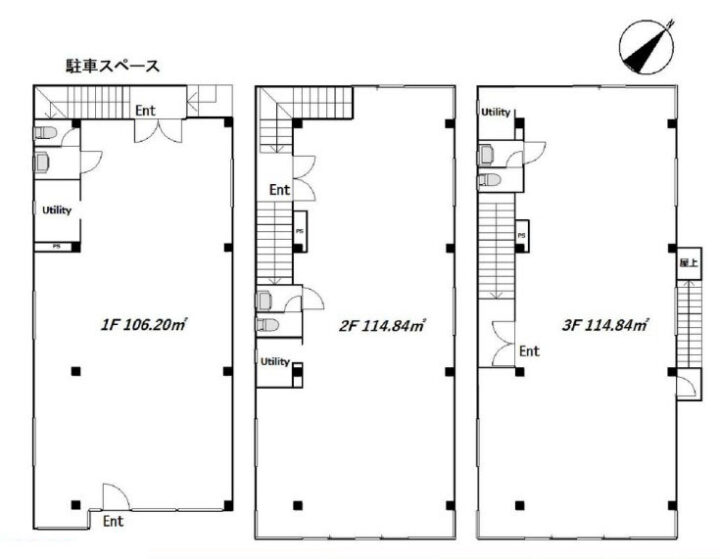
| 専有面積 | 106.20m²(32.13坪) |
| 交 通 |
▲トップへ
▲トップへ
| 所在 | 千葉県王子台1-13-8 | 賃料 | 187,000円 |
|---|---|---|---|
| 敷金 | 2ヶ月 | 礼金 | なし |
| 保証金 | なし | 管理費 | |
| 更新料 | 新賃料 1か月+消費税 | 火災保険 | 要加入 |
| 契約期間 | 3年 | 駐車場 | 有 |
| 交通 | |||
| 専有面積 | 106.20m²(32.13坪) | 間取り | |
| 所在階 | 1階 | 現況 | 空室 |
| 構造 | 鉄骨造陸屋根3階建 | 築年月 | 1989年4月 |
| 各戸設備 | 室内トイレ(温水洗浄便座)・洗面所 | 設 備 | |
| 備 考 | ※全3室 1階:賃料187,000円 面積106.20㎡(32.13坪) 2階:賃料154,000円 面積114.84㎡(34.74坪) 3階:賃料143,000円 面積114.84㎡(34.74坪) ※駐車場2台分空有:料金5,500円(税込)【2025年9月20日現在】 ※要保証会社加入 | ||
| 引渡日 | 即入居可 | 取引態様 | 仲介 |
| 更新日 | 次回更新日 | ||
▲トップへ