土地・工場・事務所・倉庫・資材置き場・病院・店舗・ホテルなどの売買・賃貸物件を取り扱っています!

問い合わせリストに追加

物件詳細

写真・配置図・間取り図など物件の詳細を紹介しています。ご関心をお持ちになりましたら、百聞は一見にしかずです。お電話またはお問い合わせフォームからご連絡をいただき、ぜひ一度ご見学ください。

設備の整った倉庫

物件No.J0837

★電動シャッターあり
★荷積みスペースあり
★クレーンあり

  • Map&Data
  • Map&Data
種 別貸倉庫
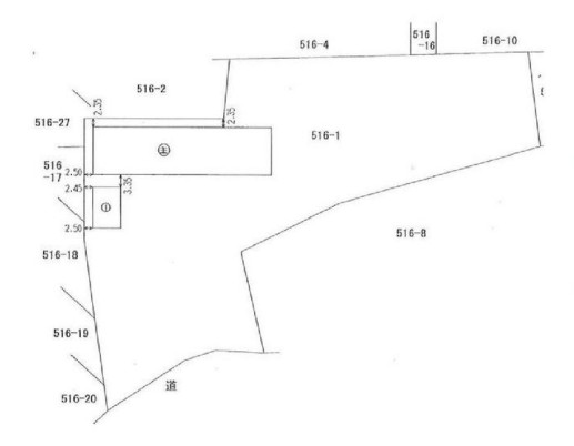
所 在吉田516-1
賃 料550,000円
専有面積621.62m²(188.04坪)
交 通

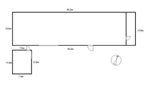
間取図

トップへ

(賃貸)物件No.J0837【千葉県吉田516-1 550000円/月】-間取図

配置図

トップへ

(賃貸)物件No.J0837【千葉県吉田516-1 550000円/月】-間取図

物件データ

トップへ

所在千葉県吉田516-1賃料550,000円
敷金3ヶ月礼金1ヶ月
保証金なし管理費
更新料新賃料 1か月+消費税火災保険要加入
契約期間5年駐車場
交通
専有面積621.62m²(188.04坪)間取り
所在階現況入居中
構造鉄骨造1階建築年月1999年4月
各戸設備設 備
備 考※仲介手数料:賃料1ヶ月+消費税
※開発許可を受けていない増築あり
※付属建物有(83.02㎡)
※クレーン2.8t(2基)
※賃貸保証会社要加入:ジェイリース(初回保証料100%、継続保証料10%/年)
引渡日相談取引態様仲介
更新日次回更新日

アクセスマップ

トップへ